Leased

153 Carmody Road, St Lucia

$490 per week

3 1 1

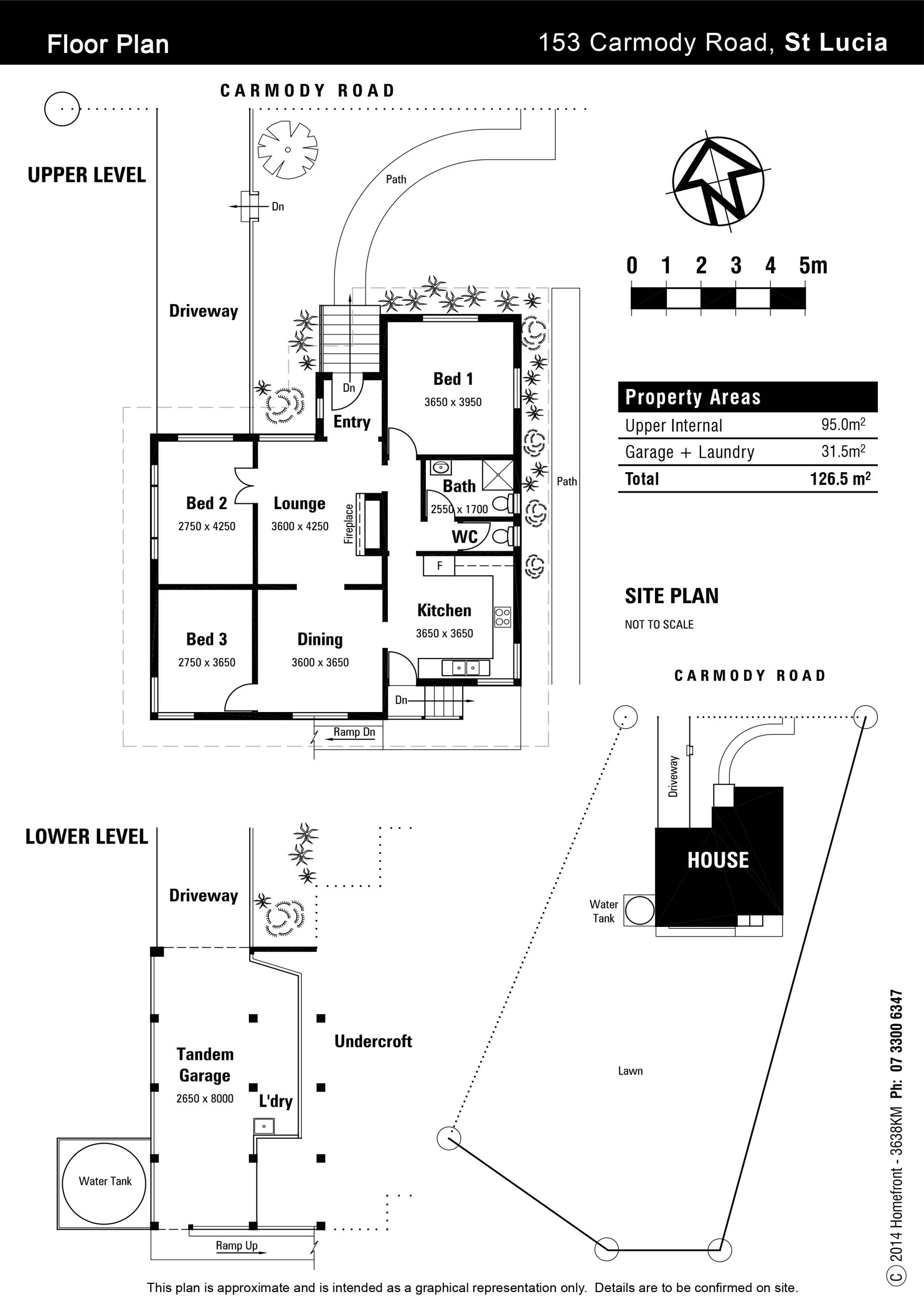
LOVELY HOME IN AN EXCELLENT LOCATION

Lovely 3 bedroom home located in the heart of St Lucia featuring:

- ceiling fans and built-in wardrobes in all bedrooms

- air-conditioning in living area

- timber floors throughout

- spacious open plan dining and lounge area

- modern kitchen with gas cooking and plenty of cupboard space

- Single undercover car port (Laundry is also under the house)

- Huge yard 

- Sorry no pets

This property is a short walk to UQ, schools, shops and transport. This definitely warrants an inspection. 

3 1 1

Details

Available Leased
Property Type Rental
Category House

Tools

Share This Property